1546 Samaritan DriveSummit Township, MI 49203




Mortgage Calculator
Monthly Payment (Est.)
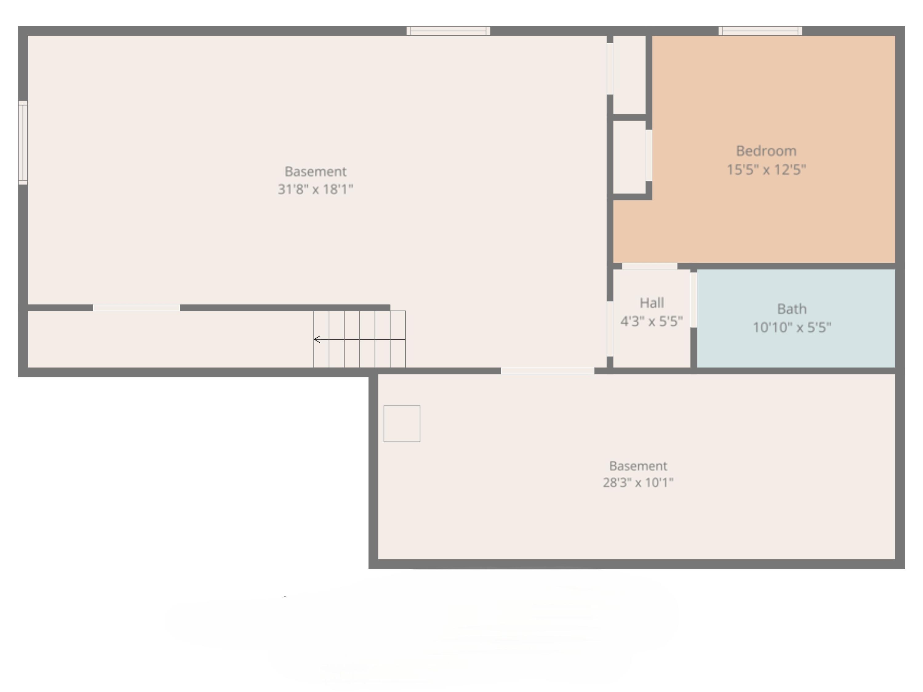
$1,505BE THE FIRST TO CALL THIS BEAUTIFUL NEW RANCH HOME! Stunning new construction located in Summit Township, next to The Falling Waters Trail-you can actually walk right onto the trail from this cul-de-sac setting. Perfectly positioned at the back of the small neighborhood, it's designed with 3BDRMS/2BA, main floor living & a private owner's ensuite. This home is filled with a bright, open layout & an abundant of natural daylight. The modern kitchen flows seamlessly into the dining and living areas, creating the perfect space for gatherings. Spacious basement with egress windows providing endless options for future expansion for additional bedrooms, bathroom, home theater, gym or office. Inviting finishes have carefully been selected including light Gray vinyl siding, crisp white soft close & dove-tail finished cabinetry in the kitchen accented with granite counters (baths too) luxury vinyl plank flooring throughout most of the living spaces with plush carpet in the bedrooms.The house is framed and currently in the electrical phase so if you get in soon, you might still have time to pick out some of your own finishes & colors. Please note: Photos shown are of a previously built home and are provided for illustration purposes only. Actual finishes, colors and features may vary but it was built by the same builder and represent the quality and design you can expect in your new home! Call today!
| 5 months ago | Listing first seen on site | |
| 5 months ago | Listing updated with changes from the MLS® |
IDX provided courtesy of Realcomp II Ltd. via JacksonAreaAssociationofREALTORS. Copyright © 2026 Realcomp II Ltd. Shareholders.
IDX information is provided exclusively for consumers' personal, non-commercial use and may not be used for any purpose other than to identify prospective properties consumers may be interested in purchasing and that the data is deemed reliable but not guaranteed accurate by the MLS.
Did you know? You can invite friends and family to your search. They can join your search, rate and discuss listings with you.